EMCA
来源:
上海江南长兴造船有限责任公司压缩空气系统节能项目
如需了解更多节能方案和节能改造服务,请咨询低碳网专业专家团队。
一、案例名称
上海江南长兴造船有限责任公司压缩空气系统节能项目
二、案例业主
上海江南长兴造船有限责任公司位于上海长兴岛,规划年造船能力332万载重吨,工厂布局合理,工艺装备精良,是目前国内规模最大、设施最先进、生产品种最为广泛的现代化造船基地。
当前,压缩空气系统是企业的主要能耗组成部分,其中1号、2号空压站全年耗电达4500多万千瓦时,折合电费3600多万元,约占全厂耗电的45%。经仔细调研,系统当前存在着供需匹配不当、管网流量调度原始、末端用气设备泄漏严重等问题,整体无谓能耗损失巨大。
三、案例内容
1.技术原理及适用领域
以造船行业为代表性的大规模用气场合,长期存在着离心机群频繁加卸载、大量放空、管网压力波动较大的现象,系统供需匹配关系不佳,能耗损失严重。新开发的“慧航”空压站房管理系统,具有未来负载用气预测、设备智能群控、管网压力波动缓冲流量控制分配等功能,全面有效地降低了压缩空气系统的运行能耗。
未来负载用气预测:依据历史运行数据,分析影响用气负荷因子,采用支持向量机预测算法选取预测模型并优化模型参数,进而进行负荷预测,得出几种可靠方案,然后结合专家经验对预测结果、预测精度及可信度做出评价,用历史数据样本校验,并自适应修正,最后结合滚动负荷数据,得出满足要求的预测模型,该预测学习机可预测空压站未来10小时内用气值。
设备智能群控:对站房设备通过协议触点或者传感器直接读取其运行信息,实时把握运行状态,通过系统开发的专家智能算法及预测信息及时调整设备的运行,有效提升上游与末端的负载匹配度,该系统具有自学习功能,可不断更新优化。
管网压力波动缓冲:系统开发的智能流量控制单元,可有效调整高低压之间的关系实现合理溢流,缓解压力波动造成的损失及对压缩机的电流冲击。
流量控制分配:合理计算出实际流量的变化需求,配置高性能螺杆机,有效改善离心机群流量区间调整不大的问题,实现流量任务的精细分配,降低整体设备的运行能耗。
该技术对大型离心机群具有较好的应用效果,适用于造船、钢铁、电解铝等大规模用气场合。
2.节能改造具体内容
该项目主要针对长兴造船厂的一号生产线的压缩空气系统进行节能改造,对空压机进行合理配置,减少管网压损,降低压缩空气泄漏,提高空压机输出效率。
空压站房节能监控系统依据历史运行数据进行用气预测,给出未来10小时内用气需求变化,进而系统以此为调整建议,利用智能专家算法最优化系统设备运行,减少卸载时间及放空现象,使系统供需匹配紧凑合理实现按需供气,减少系统无谓耗电。安装的智能管网流量控制单元智能调配压缩空气流量,实现系统整体的稳压稳流,降低压损减少压力波动对压缩机的电流冲击。增设螺杆机,并安装节能辅控柜,同时配置高效后处理设备,实现供需关系精细调配的同时提升压缩空气品质。
3.项目实施情况
项目开工时间为2012年9月,竣工时间是2013年1月。该项目自开始施工起,空压系统能效状态即开始得到不断优化,项目施工结束,经第三方--上海能效中心评估,上海长兴造船压缩空气系统的单位产量能耗从0.1305kW·hm下降至0.1123kwh/m节能率13.94%。
四、项目年节能量及节能效益
1.改造前后系统用能情况及主要参数
以2012年11月1日至12月3日的单位产量(压缩空气)耗电量为节能改造前单位产量的耗电量,2012年12月5日至12月7日的单位产量(压缩空气)耗电量为节能改造后单位产量的耗电量,进行比较。
项目能量对比

2.节能量计算方法
采用电气比单耗法测试。测定压缩机系统在节能监控系统在线状态与离线状态下电气比值,计算项目节能率
空压机单耗=
节能率=
x100%
其依据是《GB19153-2009容积式空气空压机能效限定值及能效等级》中的空压机节能评价值:节能空压机在规定工况下所允许的最大机组输入比功率值kW/(m,min)。

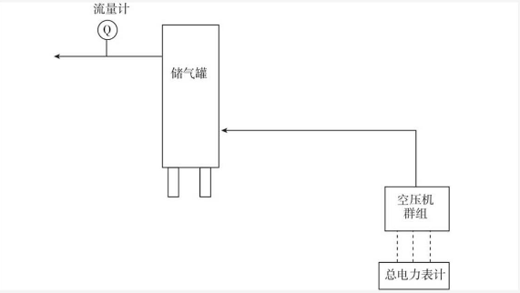
电气比单耗法测试原理图
3.项目年节能量及节能效益
2011年压缩机系统总用电量4530.4万kW·h。以测试结果显示的节能率,该项目可实现年节电量631.5万kW·h,折合节能标准煤2551.26吨。当地电费单价为0.8元kW·h,全年可实现电费节省总额505.2万元人民币。
五、商业模式
该节能改造项目采用节能效益分享型模式运作,合同期为6年,通过上海能效中心进行节能效果的评估,节能率为13.94%。款项结算方式为每季度按分成比例计算。合同期满前所有权属于节能服务公司,合同期满后业主取得项目所有权。
六、融资渠道
全部资金通该项目投资额为800万元,过银行贷款获得。
特别声明:本网站转载的所有内容,均已署名来源与作者,版权归原作者所有,若有侵权,请联系我们删除。凡来源注明低碳网的内容为低碳网原创,转载需注明来源。