Kings
来源:电力能源互联网

宁夏宁东能源化工基地传出消息,4月18日凌晨,宁夏宝丰能源集团股份有限公司发生爆炸事故,事故造成2人死亡,4人烧伤。公司子公司宁夏东毅环保科技有限公司(“东毅环保”)东毅环保为上市公司2013年收购的全资子公司,位于宁夏宁东宝丰循环经济工业园区,主营业务系以焦炉气为原料生产甲醇,该公司生产的甲醇完全内部供给烯烃厂使用,且原材料为宝丰能源焦化厂生产的焦炉煤气。
目前,受伤人员正在全力救治中。事故原因正在调查, 18日午后开盘,宝丰能源直线下跌,最深跌幅超4%。年后宝丰就出了事,这才多久又来?(能源电力化工都有保险,但是无论赔偿多少至少2个家庭破了,高高在上的人风险转嫁给保险公司,事不关己漠视生命。受伤的永远都是底下干活的人)。公司高管在当日下午的业绩说明会上表示,事故应急处置已结束,事故原因正在调查。公司其他生产装置正常生产,生产经营秩序未受到影响。(说的不是怎么处理的,却是没影响生产,可笑)。而在今年1月及去年8月,宝丰能源亦曾发生安全事故。其中2023年宝丰能源甲醇一厂“8·7”中毒和窒息事故造成2人死亡。根据披露,过去三年间,宝丰能源涉及安全生产的相关行政处罚合计90项。

看到这个消息的同时脑海里闪过很多的念头,大致的梳理一下,记录一下。
最早接触到宝丰能源,是在2016年了,那时候还去过宝丰能源一趟,想来已经8年了。当时去评估《宁夏宝丰能源集团股份有限公司能源互联网一体化平台建设技术方案》去的,对那里的印象相当的不错的。

但是仔细看了他们的配电系统,的确是存在问题的。能源管理是促进企业提高能源利用水平的有效手段,建立覆盖企业能源利用全过程的管理体系,对强化结构节能与技术节能,促进企业构建长效节能机制具有重要意义。避免企业在能源管理工作方面出现重视不够,管理不规范,方法不科学,法规政策落实不到位,节能潜力没有得到充分挖掘等问题。国家发改委在2016年2月29日下发了关于推进“互联网+智慧能源发展的指导意见”和发改委等六部委《关于印发电力需求侧管理办法的通知》中明确提出着力推进企业能源互联网平台建设,并在全国范围内对具备实施能源互联网平台建设条件的企业给予专项资金扶持。注:宁夏经信委2015年国家拨付专项资金7500万元用于项目建设。(啧啧啧,这么大一笔钱,怎么都能全方位建设完成了吧!)
当时的建设范围:集团公司下属9家二级公司:焦化厂、甲醇厂、洗煤厂、动力公司、马莲台煤矿、烯烃厂、苯加氢厂、焦油加工厂、物业公司全部覆盖,并预留宝丰新能源光伏、风电接口和能源集团公司3期项目预留接口。
当时的建设内容针对的问题:集团公司实施能源互联网一体化管理平台建设项目是通过对企业内部煤矿、化工、电力三大企业供配电力系统进行数字信息化分析、仿真计算等管理措施,建立企业供配电系统模拟仿真平台,针对企业生产用电过程中的线路损耗、电缆故障、“晃电”故障以及不同类型企业的供用电需求进行计算模拟仿真,分析故障原因,优化决策方案。
功能范围是:(范围我当时在审核时候,适当的 修改添加了一些超前的东西,因为项目经费完全能够覆盖的,很多专家也认可我的做法)。


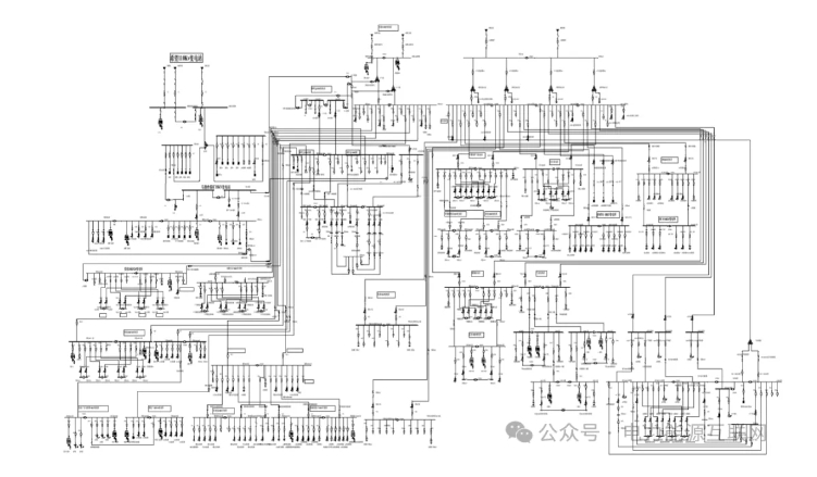
(我亲自搭建模型仿真输出计算结果图)
这个计算分析模型,是我亲自搭建仿真的,根据实际的仿真结果,在结合历史的运行情况,印证模型成熟度和准确性,尤其是末端的电压压降和进线侧的电压,都存在问题的,在理论情况下运行,系统是运行不了(潮流无法收敛)。
虽然后面的我就没再关注了,但是从之初的现场看到我亲自仿真验证,结果都是存在问题的,前几年好像听说“宁夏政府”特批了资金用于宝丰的能源安全建设和信息化建设(没去验证真假),前前后后投了这么多钱,也不知道钱都用去干啥了?这么多员工在上着班,至少保障一下他们的安全性啊!
2016年当时去宝丰还如日中天的,上市之后就沉默了,口碑也是一跌再跌。

八个月内三起安全事故,曾强调“要守住安全环保红线底线”
特别声明:本网站转载的所有内容,均已署名来源与作者,版权归原作者所有,若有侵权,请联系我们删除。凡来源注明低碳网的内容为低碳网原创,转载需注明来源。